Tiny house permits proposed in Falls City

FALLS CITY – The Falls City City Council is scheduled to meet at 6 p.m. on May 15.
The agenda includes public hearings for an animal daycare and boarding facility at 3109 McLean Street and for a zoning change to allow tiny houses as recommended by the planning commission.
The planning commission also recommends the final plat for the Seeba Subdivision.
Margaret Ramsey and Ken Vonderschmidt request an annual permit for four ponies and six calves at 1801 Schoenheit Street.
The ATV ordinance, Tiger Trail cul-de-sac, and youth recreation funding are also on the agenda.
City Administrator Anthony Nussbaum reports that 41 vacant properties have been registered in the first 120 days of the city’s vacant building program. Properties owners that do not comply with getting the property removed within 180 days of registration will received first-round fees of $250 residential and $500 commercial.
The city expects to impose over $12,000 in fees in the fiscal year, which will be reinvested into the program.
Hope Schawang, library director for 36 years, is planning to retire on May 16.
Jennifer and Joe Dixon of 3109 McLean St. request a conditional use permit to board and groom animals in the residential district. They plan to install “bark arrestors” and a solid fence on property lines for “Close to Home Kennels.”
The animal daycare has been open for six months and has 10 inside kennels and three outside play areas.
Close to Home Kennels presents the city with 95 signatures in support of the conditional use permit, including City Councilwoman and Chamber Director Amber Holle. She said the business owners consulted with the city before opening and assured they could proceed.
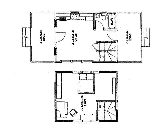
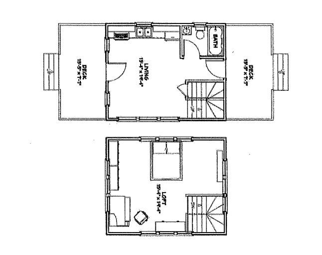
Nussbaum and Building Inspector Blake Buckminster present a proposed zoning change to allow construction of tiny houses, which have between 70 and 800 square feet on a lot at least 6,000 square feet.
